Tropicana Village-Aiea ( #242 )
| 種別 | コンドミニアム | MLS | 202510542 |
|---|---|---|---|
| エリア | PEARLRIDGE | 眺望 | Golf Course |
| 価格 | $660,000 | 間取り | 3BED (2) |
| 面積 | 126㎡ | 竣工年 | 1971年 |
| 所有権 | FS-(土地所有権付き) | 現況 | 売り出し中 |
- 物件概要
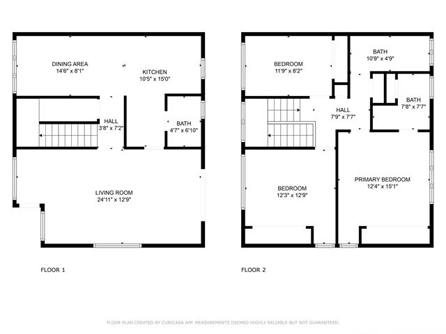
- Back on the Market! Buyer was unable to complete financing—no fault of the seller. Step inside this rarely available bright, airy, and inviting 3-bedroom, 2.5-bath split-level townhome tucked away in the heart of Aiea. This spacious corner unit at Tropicana Village feels like a single-family home with 1,361 sq ft of interior space and two side-by-side parking stalls right outside your door. Large windows fill the home with natural light, while gentle cross breezes flow through the open-concept layout, keeping the space cool and comfortable year-round. The kitchen, dining, and living areas connect seamlessly for easy entertaining, and your private lanai opens to lush greenery and peaceful golf course views, perfect for morning coffee or weekend BBQs. Enjoy the calm surroundings of this well-maintained, pet-friendly community just minutes from Pearlridge Shopping Center, freeway access, schools, restaurants, and hospitals.
- 物件状態
- 平均より上, 平均
- 郵便番号
- 96701
- 所在地
- 98-405 Kaonohi Street Aiea, HI
- パーキング
- 2
- ベランダ
- --
- 付帯設備
- AC Split,AC Window Unit,Dishwasher,Dryer,Photovoltaic – Leased,Range/Oven,Refrigerator,Washer
- 物件施設
- Patio/Deck,Resident Manager
- セキュリティー
- --
- 物件構造
- Concrete,Masonry/Stucco
- 敷地面積
- 9,700㎡
- 管理費(月)
- $981
- 組合費(月)
- --
- 管理費等に含むもの
- Sewer,Water
- その他費用(月)
- --
- その他費用に含むもの
- None
- 固定資産税(月)
- $192
- 土地リース料(月)
- --
- タックス・マップ・キー
- 1-9-8-40-2-6
- 固定資産税評価額 (年度)
- $658,200
- 建物部分評価額
- $360,600
- 土地部分評価額
- --
- 建物評価比率
- 55%
- 小学校
- --
- 中学校
- --
- 高校
- --
ハワイ不動産検索
















