47-220 Kamehameha Hwy.
| 種別 | 一戸建て | MLS | 202512034 |
|---|---|---|---|
| エリア | LULANI OCEAN | 眺望 | Garden,Ocean |
| 価格 | $1,450,000 | 間取り | 4BED (3) |
| 面積 | 180㎡ | 竣工年 | 1954年 |
| 所有権 | FS-(土地所有権付き) | 現況 | 売り出し中 |
- 物件概要
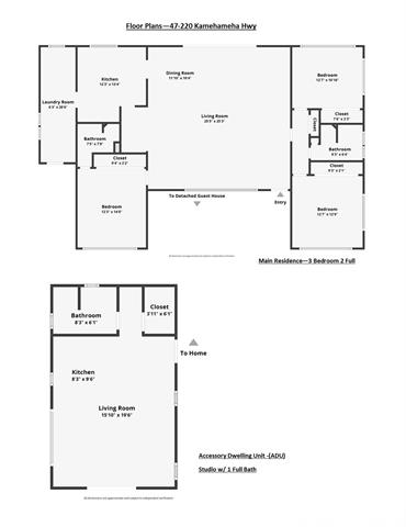
- Welcome to Kaneohe Bay oceanside living on Oahu’s Windward Coast! This charming single-family residence offers a flexible floor plan with a 3 bedrooms and 2 bath in the main home plus a legally permitted studio Accessory Dwelling Unit (ADU) with its own private & completely separate entrance from the main home with kitchenette, laundry, bath and carport—perfect for extended family, guests, or rental income. Set on a generous lot just down the street from the shoreline, this home captures the essence of island living with covered lanais, mature tropical landscaping, and ample parking. The main residence features an open-concept living area with natural light, original hardwood floors throughout, classic kitchen with original stainless steel counters, spacious bedrooms, 2 car garage with elevator/lift serving the upper primary home. Conveniently located near local shops, schools, and beaches, with easy access to He'eia Kea Boat Harbor, Kaneohe, Kailua, and Honolulu. Whether you’re looking for a full-time residence, a coastal retreat, or a property with built-in rental potential, 47-220 Kamehameha Highway is a rare find on the Windward side.
- 物件状態
- 平均
- 郵便番号
- 96744
- 所在地
- 47-220 Kamehameha Highway Kaneohe, HI
- パーキング
- 5
- ベランダ
- 15㎡
- 付帯設備
- AC Split,Cable TV,Ceiling Fan,Disposal,Drapes,Dryer,Microwave,Range Hood,Range/Oven,Refrigerator,Smoke Detector,Washer,Water Heater
- 物件施設
- Patio/Deck,Storage
- セキュリティー
- --
- 物件構造
- Above Ground,Double Wall,Single Wall,Wood Frame
- 敷地面積
- 743㎡
- 管理費(月)
- --
- 組合費(月)
- --
- 管理費等に含むもの
- --
- その他費用(月)
- --
- その他費用に含むもの
- None
- 固定資産税(月)
- $283
- 土地リース料(月)
- --
- タックス・マップ・キー
- 1-4-7-34-5-0
- 固定資産税評価額 (年度)
- $1,089,700
- 建物部分評価額
- $82,800
- 土地部分評価額
- --
- 建物評価比率
- 8%
- 小学校
- Heeia
- 中学校
- King
- 高校
- Castle
ハワイ不動産検索

























