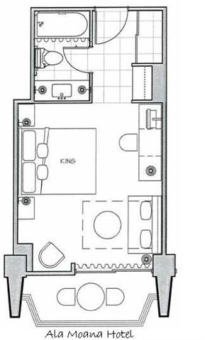
Ala Moana Hotel Condo ( #2418 )
| 種別 | コンドミニアム | MLS | 202513649 |
|---|---|---|---|
| エリア | ALA MOANA | 眺望 | Coastline,Diamond Head |
| 価格 | $220,000 | 間取り | 0BED (1) |
| 面積 | 28㎡ | 竣工年 | 1970年 |
| 所有権 | FS-(土地所有権付き) | 現況 | 売り出し中 |
- 物件概要
- High floor! Please see supplements section with article about YMCA across the street that is in the view plane progressing on reducing their max buildable height to 150', so this High Floor unit becomes more attractive. Just completed full interior renovation! Motivated Seller. Grandfathered Short Term Rental: Self-Manage/Hire Onsite Property MGR or 3rd Party Property MGR. MUST SEE! Elegant island-style hotel condo, just steps away from Ala Moana Center and Ala Moana Beach Park. Turn key vacation rental. Maintenance Fee includes internet, cable TV, electricity, A/C, and water
- 物件状態
- 優良
- 郵便番号
- 96814
- 所在地
- 410 Atkinson Drive Honolulu, HI
- パーキング
- --
- ベランダ
- 4㎡
- 付帯設備
- AC Central,Drapes,Refrigerator,Smoke Detector
- 物件施設
- Community Laundry,Concierge,Exercise Room,Heated Pool,Pool on Property,Restaurant,Sauna,Security Guard,Valet
- セキュリティー
- --
- 物件構造
- Concrete
- 敷地面積
- --
- 管理費(月)
- $1,401
- 組合費(月)
- --
- 管理費等に含むもの
- AC Central,Cable TV,Electricity,Hot Water,Internet Service,Other Common Expenses,Sewer,Water
- その他費用(月)
- --
- その他費用に含むもの
- None
- 固定資産税(月)
- $258
- 土地リース料(月)
- --
- タックス・マップ・キー
- 1-2-3-38-2-836
- 固定資産税評価額 (年度)
- $226,700
- 建物部分評価額
- $167,900
- 土地部分評価額
- --
- 建物評価比率
- 74%
- 小学校
- --
- 中学校
- --
- 高校
- --
ハワイ不動産検索

























