Kalele Kai ( #3512 )
| 種別 | コンドミニアム | MLS | 202514454 |
|---|---|---|---|
| エリア | WEST MARINA | 眺望 | Marina/Canal,Mountain,Ocean,Sunset |
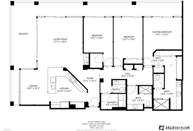
| 価格 | $399,000 | 間取り | 3BED (2) |
| 面積 | 186㎡ | 竣工年 | 1993年 |
| 所有権 | FS-(土地所有権付き) | 現況 | 売り出し中 |
- 物件概要
- Co-Ownership Opportunity! Looking for a partner to co-own 1/8th of this immaculate marina front condo. Easily one of the most premier locations not just in desirable Kalele Kai, but on the entire marina! This perfectly situated corner end unit, provides breathtaking views of the marina stretching from Koko Crater to Koko Head & beyond! 3BRs, 2.5 BAs, & a large 589 S.F. wrap around lanai overlooking the marina, garden, & pool, this home has it all. If that isn't enough, this home is also being conveyed w/ 2 side by side deeded boat slips, 21' pontoon boat, 2023vehicle, 2 stand up paddle boards, a tandem kayak, all your beach gear. The lush landscaping & pool area w/ the Cabana & BBQ give the grounds a tropical resort atmosphere. Walking distance to Safeway & other stores. Turn-key & professionally cleaned. Not a timeshare opportunity, nor is it a vacation rental. List price is for 1/8thownership in LLC. and use of other amenities. All comments, data is provided by seller or seller’s rep. Buyer to confirm all & hold all parties harmless from any discrepancy data in the mls & advertising. Ltd Service Addendum signed by seller/s must be signed by buyer/s w/ Purchase Contract.
- 物件状態
- 優良
- 郵便番号
- 96825
- 所在地
- 1 Keahole Place Honolulu, HI
- パーキング
- 2
- ベランダ
- 55㎡
- 付帯設備
- AC Central,Ceiling Fan,Compactor,Convection Oven,Dishwasher,Disposal,Drapes,Dryer,Kitchenware,Linens,Microwave,Range Hood,Range/Oven,Refrigerator,Smoke Detector,Washer,Water Heater,Wine Refrigerator
- 物件施設
- BBQ,Boat Dock,Car Wash,Club House,Community Association Pool,Condo Association Pool,Fire Sprinkler,Heated Pool,Patio/Deck,Resident Manager,Security Guard,Trash Chute
- セキュリティー
- --
- 物件構造
- Other
- 敷地面積
- 34,660㎡
- 管理費(月)
- $2,009
- 組合費(月)
- --
- 管理費等に含むもの
- --
- その他費用(月)
- --
- その他費用に含むもの
- --
- 固定資産税(月)
- $615
- 土地リース料(月)
- --
- タックス・マップ・キー
- 1-3-9-8-30-199
- 固定資産税評価額 (年度)
- $1,297,300
- 建物部分評価額
- $886,500
- 土地部分評価額
- --
- 建物評価比率
- 68%
- 小学校
- --
- 中学校
- --
- 高校
- --
ハワイ不動産検索


















