Kapili at Hoopili ( #1402 )
| 種別 | コンドミニアム | MLS | 202525590 |
|---|---|---|---|
| エリア | HOOPILI-KAPILI | 眺望 | None |
| 価格 | $724,830 | 間取り | 3BED (2) |
| 面積 | 118㎡ | 竣工年 | 2025年 |
| 所有権 | FS-(土地所有権付き) | 現況 | 売り出し中 |
- 物件概要
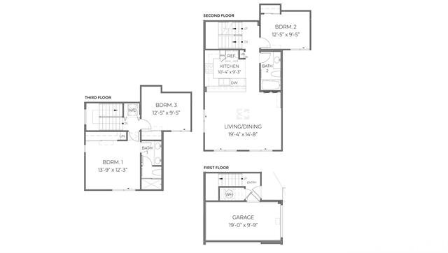
- This three story 3 bedroom and 2 bathroom condominium consists of 1,266 square feet (net) of living area with an attached garage on the ground floor. When you step into this home, you will be greeted by the kitchen featuring stainless steel appliances and white cabinets. The kitchen flows seamlessly into the dining and living room. The main floor consists of a secondary bedroom with a sliding door closet, and a full bathroom. The third level features a third bedroom with a sliding door closet and the primary bedroom with a sliding door closet and ensuite bathroom with a double vanity and walk-in shower. Whole house split air conditioning and modern appliances including a range/oven, micro-hood, dishwasher, refrigerator, and washer/dryer allow for ease of living.
- 物件状態
- 優良
- 郵便番号
- 96707
- 所在地
- 91-4099 Hikuono Street Kapolei, HI
- パーキング
- 2
- ベランダ
- --
- 付帯設備
- AC Split,Auto Garage Door Opener,Blinds,Dishwasher,Disposal,Dryer,Home Warranty,Microwave,Range/Oven,Refrigerator,Washer,Water Heater
- 物件施設
- Community Association Pool,Dog Park,Fire Sprinkler,Playground
- セキュリティー
- --
- 物件構造
- Double Wall,Steel Frame,Wood Frame
- 敷地面積
- --
- 管理費(月)
- $627
- 組合費(月)
- $88
- 管理費等に含むもの
- None
- その他費用(月)
- $0
- その他費用に含むもの
- None
- 固定資産税(月)
- $0
- 土地リース料(月)
- --
- タックス・マップ・キー
- 1-9-1-18-28-226
- 固定資産税評価額 (年度)
- $0
- 建物部分評価額
- $0
- 土地部分評価額
- --
- 建物評価比率
- 0%
- 小学校
- --
- 中学校
- --
- 高校
- --
ハワイ不動産検索

























