16-2051 Jewel Dr.
| 種別 | 一戸建て | MLS | 202600609 |
|---|---|---|---|
| エリア | AINALOA | 眺望 | None |
| 価格 | $439,000 | 間取り | 3BED (2) |
| 面積 | 109㎡ | 竣工年 | 2023年 |
| 所有権 | FS-(土地所有権付き) | 現況 | 売り出し中 |
- 物件概要
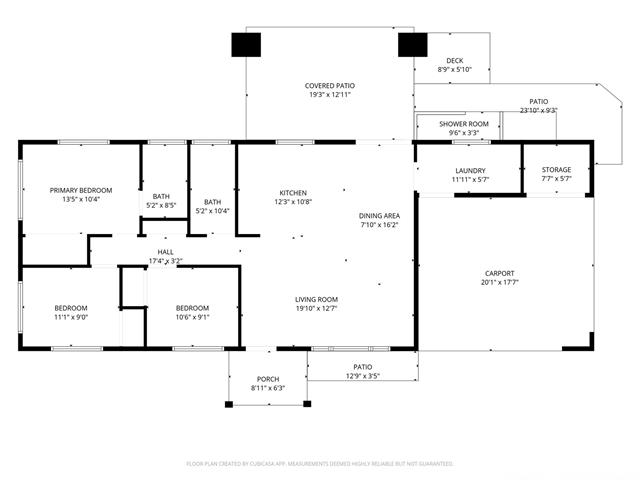
- This newly constructed residential home was finalized on December 11, 2023. This 3-bedroom, 2-bathroom property features a kitchen with beautiful quartz counter-tops and a high-quality gas range and oven. The dining area leads into a living room with vaulted ceilings. Additional interior features include a laundry room with a sink, a 2-car carport, storage space, and double-pane vinyl windows. The exterior offers a large covered patio and is situated on a paved road with easy highway access. The location is approximately 25 minutes from Hilo and 10 minutes from Pahoa or Keaau. The home includes a 10,000-gallon water storage tank equipped with a UV lightbar and two-stage string filters. The propane system is set up for two tanks with an automatic switch-over feature. This brand-new construction is easy to show. Please contact me to schedule a viewing.
- 物件状態
- 優良
- 郵便番号
- 96778
- 所在地
- 16-2051 Jewel Drive Pahoa, HI
- パーキング
- 4
- ベランダ
- --
- 付帯設備
- Cable TV,Ceiling Fan,Disposal,Drapes,Dryer,Range Hood,Range/Oven,Refrigerator,Washer,Water Heater
- 物件施設
- Bedroom on 1st Floor,Entry,Landscaped
- セキュリティー
- --
- 物件構造
- Double Wall,Slab,Wood Frame
- 敷地面積
- 1,115㎡
- 管理費(月)
- --
- 組合費(月)
- $1,875
- 管理費等に含むもの
- --
- その他費用(月)
- --
- その他費用に含むもの
- Association
- 固定資産税(月)
- $466
- 土地リース料(月)
- --
- タックス・マップ・キー
- 3-1-6-77-67-0
- 固定資産税評価額 (年度)
- $410,100
- 建物部分評価額
- $357,900
- 土地部分評価額
- --
- 建物評価比率
- 87%
- 小学校
- --
- 中学校
- --
- 高校
- --
ハワイ不動産検索





















