1490 Lehia St.
| 種別 | 一戸建て | MLS | 202604974 |
|---|---|---|---|
| エリア | FOSTER VILLAGE | 眺望 | None |
| 価格 | $1,495,000 | 間取り | 7BED (3) |
| 面積 | 239㎡ | 竣工年 | 1959年 |
| 所有権 | FS-(土地所有権付き) | 現況 | 売り出し中 |
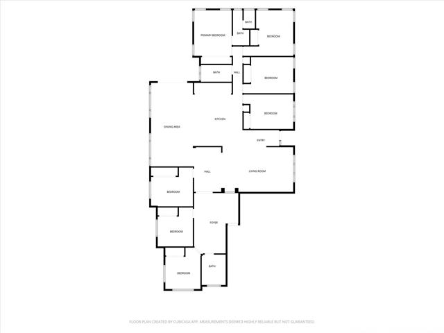
- 物件概要
- Spacious 7-bedroom, 3-bath single-level home in desirable Foster Village! This rare and versatile property offers an expansive layout ideal for multigenerational living or large families seeking space and flexibility. With generous living areas and a functional floor plan, there’s room for everyone to live, work, and gather comfortably. Previously used as a care home; however, buyer to conduct their own due diligence and verify any future use as a care home. Step outside to enjoy your private pool - perfect for relaxing weekends, entertaining guests, or creating your own island-style retreat at home. Conveniently located just minutes from Pearl Harbor, Hickam, major shopping centers, dining, freeway access, and the future Aloha Stadium redevelopment. Enjoy the benefits of a prime central location with easy access to everything Honolulu has to offer! Buyer and Buyer’s agent to perform their own due diligence.
- 物件状態
- 平均より上
- 郵便番号
- 96818
- 所在地
- 1490 Lehia Street Honolulu, HI
- パーキング
- 2
- ベランダ
- --
- 付帯設備
- AC Split,Ceiling Fan,Disposal,Microwave,Range/Oven,Refrigerator,Smoke Detector,Solar Heater,Washer
- 物件施設
- ADA Accessible,ADA Compliant,Patio/Deck,Wall/Fence
- セキュリティー
- --
- 物件構造
- Single Wall,Wood Frame
- 敷地面積
- 679㎡
- 管理費(月)
- --
- 組合費(月)
- --
- 管理費等に含むもの
- --
- その他費用(月)
- --
- その他費用に含むもの
- None
- 固定資産税(月)
- $654
- 土地リース料(月)
- --
- タックス・マップ・キー
- 1-9-9-50-53-0
- 固定資産税評価額 (年度)
- $1,338,000
- 建物部分評価額
- $278,400
- 土地部分評価額
- --
- 建物評価比率
- 21%
- 小学校
- --
- 中学校
- --
- 高校
- --
ハワイ不動産検索

























