3024 Lakimau St.
| 種別 | 一戸建て | MLS | 202518059 |
|---|---|---|---|
| エリア | KAPAHULU | 眺望 | Diamond Head,Mountain |
| 価格 | $1,775,000 | 間取り | 5BED (4) |
| 面積 | 224㎡ | 竣工年 | 2009年 |
| 所有権 | FS-(土地所有権付き) | 現況 | 売り出し中 |
- 物件概要
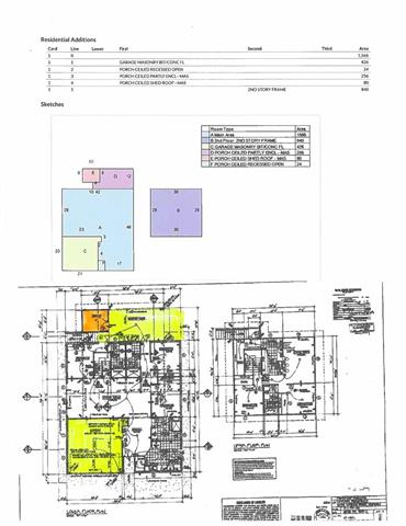
- LOCATION, LOCATION, LOCATION! Located very near Waikiki Beach - walking distance to Kapiolani Park, Zoo & Waikiki Shell. Lakimau Street is SPECIAL. Original floor plan: SPLIT LEVEL, 5 bdrm, 4 bath w/2,406 sf; RE-MODELED into four separate units. Originally designed for extended family living w/separate entrances. 1st floor: kitchen, living rm, 3 bdrm, 3 bath. 2nd floor: wetbar, family rm, 4th bdrm, primary bedroom & 1 bath with an interior and exterior stairs. This versatile floor CONVERTED into 4 separate rental units in 2019. UP level: 2 bdrm/1 bath w/KITCHEN-designated as Unit #2 (800 sf). DOWN levels: Unit #1 w/KITCHEN, Units #3 & #4 each has a wet bar sink & bath. Split A/C in all units. A community washer/dryer in the covered lanai-256 sf. This lanai has 4 detached storage rooms. Property set up for low maintenance. See Good-to-Know Information in Supplement File. See floor plan copy in photo file. *****The 2 bdrm/1 bath UP-2nd floor Unit #2 could be a legal ADU unit (maybe); subject to DP&P approval. See 'rent rolls' in Good-to-Know Supplement. ****** Showing starts 12/3-Broker's OH. 1st Open House 12/7.
- 物件状態
- 平均より上
- 郵便番号
- 96815
- 所在地
- 3024 Lakimau Street Honolulu, HI
- パーキング
- 4
- ベランダ
- --
- 付帯設備
- AC Split,Auto Garage Door Opener,Cable TV,Disposal,Dryer,Range Hood,Range/Oven,Refrigerator,Solar Heater,Washer
- 物件施設
- Patio/Deck,Storage,Wall/Fence
- セキュリティー
- --
- 物件構造
- Double Wall,Hollow Tile,Slab,Wood Frame
- 敷地面積
- 465㎡
- 管理費(月)
- --
- 組合費(月)
- --
- 管理費等に含むもの
- --
- その他費用(月)
- --
- その他費用に含むもの
- --
- 固定資産税(月)
- $450
- 土地リース料(月)
- --
- タックス・マップ・キー
- 1-3-1-23-92-0
- 固定資産税評価額 (年度)
- $1,660,100
- 建物部分評価額
- $561,000
- 土地部分評価額
- --
- 建物評価比率
- 34%
- 小学校
- Waikiki
- 中学校
- Kaimuki
- 高校
- Kalani
ハワイ不動産検索

























